>Home
>Firma
>> Produkte
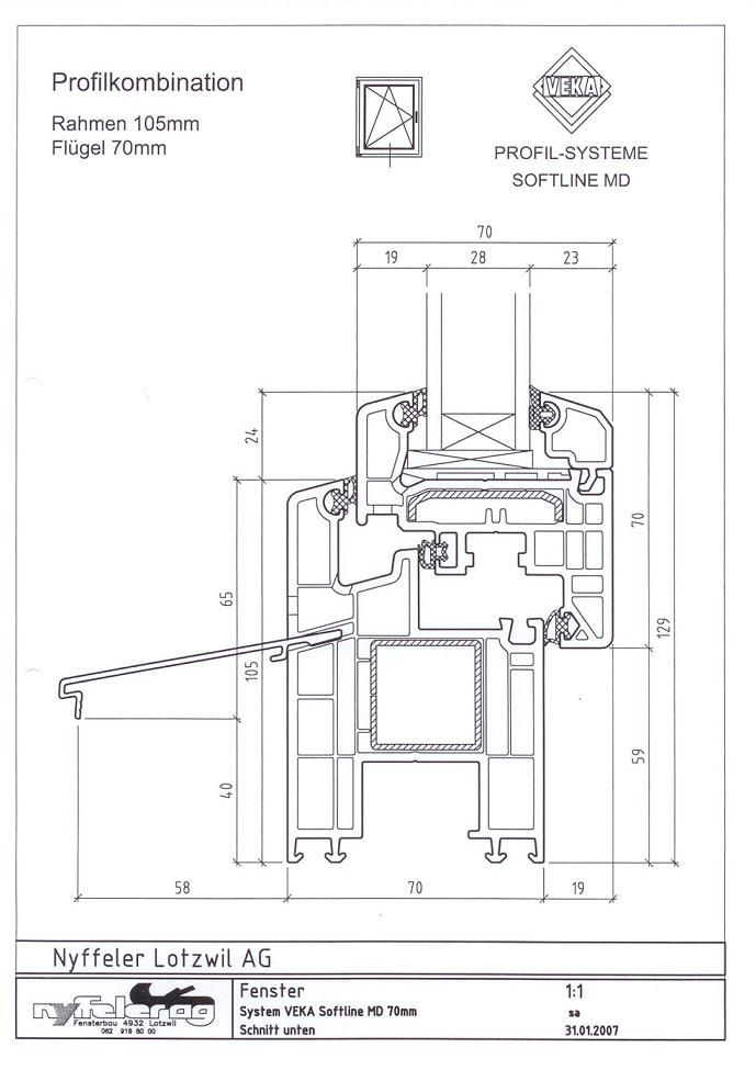
>Holzfenster >Holz-Metallfenster > > Kunststofffenster >> Softline > >Fensterladen > >Rollladen > >Storen
>Entsorgung
>Referenzen
>Kontakt
>Links
> Zurück